Hot search terms: 360 Security Guard Office365 360 browser WPS Office iQiyi Huawei Cloud Market Tencent Cloud Store
CAD software Storage: 1.44GB Time: 2022-04-22
Software introduction: Autodesk releases the latest version of AutoCAD every March, and this year is no exception. It is currently available on the Autodesk forum...
AutoCAD is a powerful professional CAD software. It is a benchmark tool for architects, engineers and designers to create accurate 2D drawings and 3D models. It has revolutionized the design industry with its unparalleled accuracy and efficiency. AutoCAD is not only a powerful tool in the hands of designers and engineers, but also the cornerstone of digital collaboration throughout the design, construction and manufacturing processes. It provides users with flexible working methods through desktop version, web version and mobile version, and continues to promote the digital transformation of the design industry. Next, let Huajun editor explain to you how autocad exports pdf and how autocad exports pdf!
first step
Start the AutoCAD software and open the drawing file that needs to be exported to PDF.
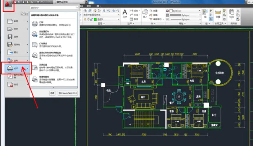
Step 2
Click [File] → [Print] on the top menu bar (or directly press the shortcut key Ctrl+P) to pop up the print settings dialog box.
Step 3
In the "Printer/Plotter" option, select "DWG To PDF.pc3" (if it is not displayed, you need to confirm whether the PDF virtual printer driver is installed).
Step 4
Set printing parameters
Drawing size: Choose the appropriate paper size (such as A4, A3, etc.) according to your needs.
Printing range: Select "Window" mode and use the mouse to select the area of the drawing that needs to be exported.
Plot style table: Usually select "acad.ctb" (default black and white style) or adjust the color, line width, etc. as needed.
Printing ratio: Check "Fill the drawing" or set the ratio manually (such as 1:1).
Drawing direction: Select "Portrait" or "Landscape" according to the drawing direction.
Step 5
Click the [Preview] button to check whether the drawing is complete and the layout is correct. After confirming that everything is correct, click [OK] to return to the print dialog box.
Step 6
In the print dialog box, specify the save path and file name of the PDF file. Click [Save] and AutoCAD will automatically generate a PDF file.
The above is how to export pdf from autocad and the method of exporting pdf from autocad compiled by Huajun editor for you. I hope it can help you!
How to draw dotted lines in autocad-How to draw dotted lines in autocad
How to enable hardware acceleration in autocad-How to enable hardware acceleration in autocad
How to make curved text in coreldraw - How to make curved text in coreldraw
How does coreldraw reconcile the color and spacing of objects - How does coreldraw reconcile the color and spacing of objects
How to make special effect fonts in coreldraw - How to make special effect fonts in coreldraw
Lightning simulator
MuMu emulator
iQiyi
Eggman Party
WPS Office 2023
WPS Office
Minecraft PCL2 Launcher
WeGame
Tencent Video
What to do if there is no sound after reinstalling the computer system - Driver Wizard Tutorial
How to switch accounts in WPS Office 2019-How to switch accounts in WPS Office 2019
How to clear the cache of Google Chrome - How to clear the cache of Google Chrome
How to practice typing with Kingsoft Typing Guide - How to practice typing with Kingsoft Typing Guide
How to upgrade the bootcamp driver? How to upgrade the bootcamp driver